
120 Greenbriar Drive Princeton, TX 75071
3 Beds
2 Baths
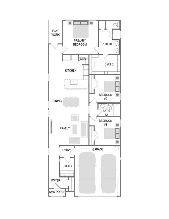
1,662 SqFt
Open House
Tue Apr 28, 12:00pm - 2:00pm
Thu Apr 30, 12:00pm - 2:00pm
Sat May 02, 1:00pm - 3:00pm
Sun May 03, 1:00pm - 3:00pm
UPDATED:
Key Details
Property Type Single Family Home
Sub Type Single Family Residence
Listing Status Active
Purchase Type For Sale
Square Footage 1,662 sqft
Subdivision Southridge
MLS Listing ID 21172148
Style Contemporary/Modern,Craftsman
Bedrooms 3
Full Baths 2
HOA Fees $630/ann
HOA Y/N Mandatory
Year Built 2025
Lot Size 4,800 Sqft
Acres 0.1102
Lot Dimensions 40x120
Property Sub-Type Single Family Residence
Property Description
Location
State TX
County Collin
Community Community Pool, Jogging Path/Bike Path, Playground
Direction Follow Highway 75 North to N Central Expy N in McKinney. Take exit 41 toward 380 and take a right. Turn left onto New Hope Rd W and take a right onto Co Rd 408. Take a left onto FM75 and another left onto Pheasant Trl. Turn left at the first cross street onto High Valley Dr
Rooms
Dining Room 1
Interior
Interior Features Cable TV Available, Decorative Lighting, High Speed Internet Available, Open Floorplan, Pantry, Vaulted Ceiling(s), Walk-In Closet(s)
Heating Central
Cooling Ceiling Fan(s), Central Air
Flooring Carpet, Laminate, Luxury Vinyl Plank
Appliance Built-in Gas Range, Dishwasher, Disposal, Electric Oven, Gas Cooktop, Microwave, Plumbed For Gas in Kitchen, Tankless Water Heater
Heat Source Central
Laundry Electric Dryer Hookup, Utility Room, Full Size W/D Area, Washer Hookup
Exterior
Exterior Feature Covered Patio/Porch, Rain Gutters, Lighting, Private Yard
Garage Spaces 2.0
Fence Back Yard, Wood
Community Features Community Pool, Jogging Path/Bike Path, Playground
Utilities Available City Sewer, City Water
Roof Type Composition
Total Parking Spaces 2
Garage Yes
Building
Story One
Foundation Slab
Level or Stories One
Structure Type Brick,Rock/Stone,Siding
Schools
Elementary Schools Green
Middle Schools Southard
High Schools Lovelady
School District Princeton Isd
Others
Virtual Tour https://www.propertypanorama.com/instaview/ntreis/21172148







